ထုတ်ကုန်များ
ပင်မ > ထုတ်ကုန်များ
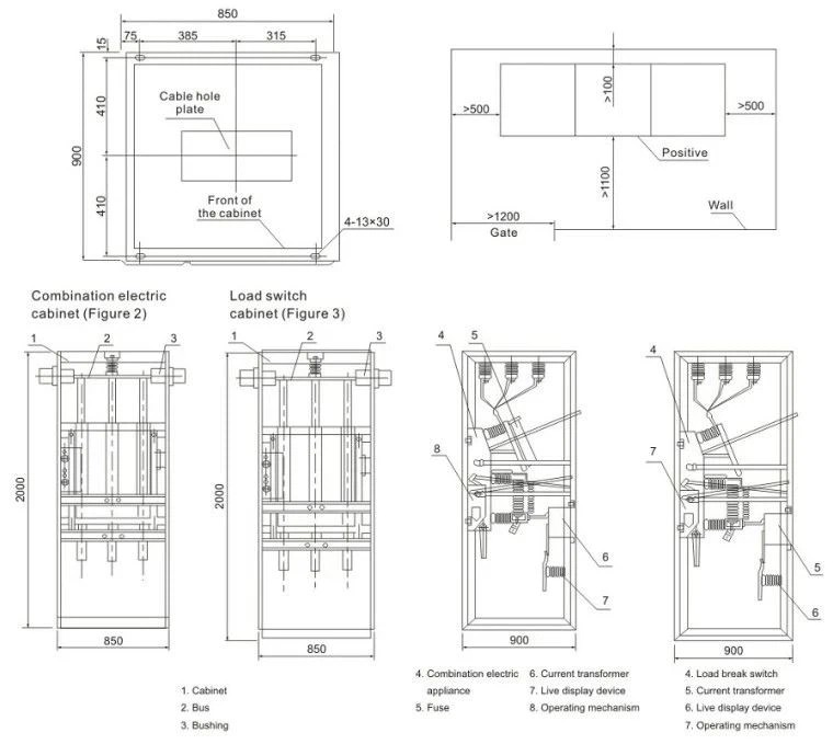
ဖြန့်ဝေရန်အတွက် 35kV တပ်ဆင်ထားသော ကြိုးဝိုင်းခလုတ်ခလုတ်
  • ဖြန့်ဝေရန်အတွက် 35kV တပ်ဆင်ထားသော ကြိုးဝိုင်းခလုတ်ခလုတ်ဖြန့်ဝေရန်အတွက် 35kV တပ်ဆင်ထားသော ကြိုးဝိုင်းခလုတ်ခလုတ်

ဖြန့်ဝေရန်အတွက် 35kV တပ်ဆင်ထားသော ကြိုးဝိုင်းခလုတ်ခလုတ်

Comewill သည် တရုတ်နိုင်ငံရှိ ပရော်ဖက်ရှင်နယ် ထုတ်လုပ်သူဖြစ်သည်။ ဖြန့်ဖြူးမှုအတွက် ကျွန်ုပ်တို့၏ 35kV ပုံသေအလုံပိတ် ring switchgear (ယခုနောက်ပိုင်းတွင် "ring main unit" ဟုရည်ညွှန်းသည်))။ ၎င်းသည် လျှပ်စစ်ဓာတ်အား ဖြန့်ဖြူးရေးစနစ်များအတွက် အထူးဒီဇိုင်းထုတ်ထားသော ဗို့အားမြင့် ခလုတ်ဂီယာဖြစ်ပြီး ပါဝါအခြေခံအဆောက်အအုံဆိုင်ရာ ပရောဂျက်များ၏ ဝယ်ယူမှုနှင့် ရွေးချယ်မှုလိုအပ်ချက်များအတွက် သင့်လျော်ပြီး ဝယ်ယူရေးဆိုင်ရာ ဆုံးဖြတ်ချက်များအတွက် စံပြရွေးချယ်မှုတစ်ခုဖြစ်သည်။

ဖြန့်ဖြူးရေးကွန်ရက်ထိန်းချုပ်မှုနှင့် ကာကွယ်ရေးအတွက် အဓိကစက်ပစ္စည်းများအနေနှင့်၊ Comewill အရည်အသွေးမြင့် 35kV တပ်ဆင်ထားသည့် တရုတ်နိုင်ငံထုတ် ဖြန့်ဖြူးမှုအတွက် ကြိုးဝိုင်းခလုတ်ဂီယာသည် မြို့ပြဓာတ်အားလိုင်းတည်ဆောက်မှုနှင့် ပြုပြင်မွမ်းမံရေးပရောဂျက်များ၊ စက်မှုနှင့် သတ္တုတူးဖော်ရေးလုပ်ငန်းများ၊ အထပ်မြင့်အဆောက်အအုံများနှင့် အများပြည်သူသုံးပစ္စည်းများကို ဝယ်ယူသူများ၏ စက်ပစ္စည်းစွမ်းဆောင်ရည်အတွက် ဝယ်ယူသူများ၏ အဓိကလိုအပ်ချက်များနှင့် ပြည့်မီပါသည်။

ဤပုံသေ ဒီဇိုင်းလက်စွပ် ပင်မယူနစ်သည် ခေတ်မီ ဓာတ်အားဖြန့်ဖြူးရေးစနစ် ဝယ်ယူရေး အတွက် ဦးစားပေး ထုတ်ကုန် ဖြစ်လာပြီး သင့်အား ကုန်ကျစရိတ် သက်သာသော ဓာတ်အား အခြေခံ အဆောက်အဦ ဖွဲ့စည်းမှု ပုံစံကို ပေးဆောင်ပါသည်။

နည်းပညာဆိုင်ရာဒေတာ

နံပါတ်စဥ် ကုသိုလ်ကံ ယူနစ် ဒေ
1 အဆင့်သတ်မှတ်ထားသော ဗို့အား kV 12 40.5
2 အဆင့်သတ်မှတ်ထားသော အကြိမ်ရေ Hz ၅၀/၆၀
3 လက်ရှိ အဆင့်သတ်မှတ်ထားသည်။ A 630 ၆၃၀/၁၂၅၀
4 အဆင့်သတ်မှတ်ထားသော ပါဝါကြိမ်နှုန်းကို ခံနိုင်ရည်ရှိသော ဗို့အား (1 မိနစ်) အဆင့်များနှင့် မြေကြီးဆီသို့ kv 42 95
အကွာအဝေးများကို ခွဲထုတ်ခြင်း။ 48 118
အဆင့်သတ်မှတ်ထားသော လျှပ်စီးကြောင်းအား လွှမ်းမိုးနိုင်စွမ်းရှိသော ဗို့အားခံနိုင်ရည်ရှိသည်။ အဆင့်များနှင့် မြေကြီးဆီသို့ 75 185
အကွာအဝေးများကို ခွဲထုတ်ခြင်း။ 85 215
ပါဝါကြိမ်နှုန်းသည် ဗို့အားကိုခံနိုင်ရည်ရှိသည် (ထိန်းချုပ်မှုနှင့် အရန်ဆားကစ်) 2
5 အချိန်တိုအတွင်း လက်ရှိ ခံနိုင်ရည် အဆင့်သတ်မှတ်ထားသည်။ kA ၂၀/၂၅ 31.5
6 အဆင့်သတ်မှတ်ထားသော အထွတ်အထိပ်သည် လက်ရှိကို ခံနိုင်ရည်ရှိသည်။ kA ၅၀/၆၃ 80
7 အဆင့်သတ်မှတ်ထားသော တိုတောင်းသောလျှပ်စီးကြောင်း၏ကြာချိန် s 4 4
8 တိုတောင်းသော circuit breaking လက်ရှိ အဆင့်သတ်မှတ်ထားသည်။ kA ၂၀/၂၅ 31.5
9 တိုတောင်းသောလျှပ်စီးကြောင်းကို အဆင့်သတ်မှတ်ထားသည်။ kA ၅၀/၆၃ 80
10 Arcing ကြာချိန် s 1 1
11 လည်ပတ်မှုအဆင့်သတ်မှတ်ထားသည်။
0-0.3s-CO-3min-CO
12 လျှပ်ကာဓာတ်ငွေ့
SF6
13 နှစ်စဉ် ယိုစိမ့်နှုန်း % ≤ 0.01
14 ကာကွယ်မှုစံနှုန်း အလုံပိတ်ဓာတ်ငွေ့သေတ္တာ
IP67
Switchgear အကာအရံ IP4X
15 အဆင့်သတ်မှတ်ထားသော ငွေကြေးဖောင်းပွမှုဖိအား MPa 0.03
အနိမ့်ဆုံးလုပ်ဆောင်မှုအဆင့်ဖိအား 0.01
16 auxiliary circuit ၏ ထောက်ပံ့မှုဗို့အား အဆင့်သတ်မှတ်ထားသည်။ V DC 24, 48, 110, 220, AC220
17 စက်ပိုင်းဆိုင်ရာဘဝ Circuit breaker လည်ပတ်မှု 10000 11000
အထီးကျန်ခလုတ် 5000 3000
Earthing ခလုတ် 5000 3000
18 circuit breaker ၏လျှပ်စစ်ခံနိုင်ရည် လည်ပတ်မှု 30(E2)
19 ဝန်ဆောင်မှု အဆက်မပြတ် ဆုံးရှုံးခြင်း။
LSC2

နည်းပညာဆိုင်ရာ လုပ်ငန်းဆောင်ရွက်မှုပတ်ဝန်းကျင် ကန့်သတ်ချက်များ

· ပတ်ဝန်းကျင်အပူချိန် : -10°C ~ +40°C
·အမြင့်-ဗို့အား ≤1000m; ဗို့အားနိမ့် ≤2500m (အကွာအဝေးကျော်လွန်ဝယ်ယူမှုအတွက် စိတ်ကြိုက်ဒီဇိုင်းရနိုင်သည်)
· နှိုင်းရစိုထိုင်းဆ- ≤85%
· ငလျင်ပြင်းအား- ≤ ပြင်းအား ၈
· ပတ်ဝန်းကျင်ဆိုင်ရာ ကြိုတင်လိုအပ်ချက်များ- မီး/ပေါက်ကွဲခြင်းအန္တရာယ်မရှိ၊ ပြင်းထန်သောလေထုညစ်ညမ်းမှုမရှိ၊ ဓာတုချေးမတက်၊ ပြင်းထန်သောတုန်ခါမှုမရှိပါ (ဝယ်ယူရေးနေရာသည် ၎င်းတို့နှင့်ကိုက်ညီရမည်)

ကျွန်ုပ်တို့၏ဝန်ထမ်းများအားလုံး၏မပျင်းမရိကြိုးပမ်းအားထုတ်မှုများမှတစ်ဆင့်၊ ဖြန့်ဖြူးမှုအတွက် ကျွန်ုပ်တို့၏ 35kV ပုံသေအလုံပိတ်လက်စွပ် switchgear သည် ကျွန်ုပ်တို့၏ဖောက်သည်များအတွက် ယုံကြည်စိတ်ချရသောအရင်းအမြစ်တစ်ခုဖြစ်နေဆဲဖြစ်ကြောင်း သေချာစေရန် ကျွန်ုပ်တို့၏အရည်အသွေးစီမံခန့်ခွဲမှုကို စဉ်ဆက်မပြတ်တိုးတက်ကောင်းမွန်အောင်လုပ်ဆောင်ပါသည်။ ကျွန်ုပ်တို့၏ရည်မှန်းချက်မှာ သုံးစွဲသူများအား အပြည့်စုံဆုံးစမ်းသပ်မှုစနစ်နှင့် အသင့်တော်ဆုံးဖြေရှင်းနည်းများကို ပေးဆောင်ရန်ဖြစ်ပြီး သုံးစွဲသူများ၏ စိတ်ကျေနပ်မှုကို အမြင့်ဆုံးရရှိစေရန်ဖြစ်သည်။ ကျွန်ုပ်တို့သည် ဖောက်သည်၏ပထမအခြေခံမူများ၊ စျေးကွက်ဦးတည်ချက်နှင့် ထိရောက်မှုတို့ကို လိုက်နာကာ ကျွန်ုပ်တို့၏အရည်အချင်းများကို စဉ်ဆက်မပြတ်မွေးမြူပါ။

Hot Tags: သတ္တုအလုံပိတ်လက်စွပ် ပင်မယူနစ်၊ တရုတ်၊ ထုတ်လုပ်သူ၊ စက်ရုံ၊ စျေးနှုန်း၊ 630A Air Load Breaker Switch၊ Indoor 24kv Gas LBS၊ SF6 Disconnector Switch၊ Outdoor Porcelain Clad Vacuum Circuit Breaker၊ Single Phase Voltage Transformer 20kV၊ Air Insulated Circuit Breaker Gear

Hot Tags: ဖြန့်ဖြူးရန်အတွက် 35kV ပုံသေအလုံပိတ် Ring Switchgear၊ တရုတ်၊ ထုတ်လုပ်သူ၊ ပေးသွင်းသူ၊ စက်ရုံ၊ လက်ကား၊ စိတ်ကြိုက်၊ စတော့တွင်၊ တရုတ်တွင် ထုတ်လုပ်သည်၊ ဈေးနှုန်းသက်သာသည်၊ အရည်အသွေး
ဆက်စပ်အမျိုးအစား
စုံစမ်းမေးမြန်းရန်ပေးပို့ပါ။
ဆက်သွယ်ရန်အချက်အလက်
  • လိပ်စာ

    No.777 Wanweng လမ်း၊ Wengyang ခရိုင်ခွဲ၊ Yueqing မြို့၊ Wenzhou မြို့၊ Zhejiang ပြည်နယ်၊ China

  • အီးမေး

    hannah@comewill.com

switchgear၊ vacuum circuit breakers, current transformer အတွက် Comewill သို့ စုံစမ်းမေးမြန်းမှုတစ်ခု ပေးပို့ပါ။ ကျွန်ုပ်တို့၏ China factory team မှ စိတ်ကြိုက်ကိုးကားချက်များ၊ စျေးနှုန်းချိုသာသော သို့မဟုတ် ကျွမ်းကျင်သောပံ့ပိုးမှုရယူပါ။
X
သင့်အား ပိုမိုကောင်းမွန်သောကြည့်ရှုမှုအတွေ့အကြုံကို ပေးဆောင်ရန်၊ ဆိုက်အသွားအလာကို ပိုင်းခြားစိတ်ဖြာပြီး အကြောင်းအရာကို ပုဂ္ဂိုလ်ရေးသီးသန့်ပြုလုပ်ရန် ကျွန်ုပ်တို့သည် ကွတ်ကီးများကို အသုံးပြုပါသည်။ ဤဆိုက်ကိုအသုံးပြုခြင်းဖြင့် ကျွန်ုပ်တို့၏ cookies အသုံးပြုမှုကို သင်သဘောတူပါသည်။ ကိုယ်ရေးအချက်အလက်မူဝါဒ
ငြင်းပယ်ပါ။ လက်ခံပါတယ်။